【空き家物件情報】
長野県北佐久郡御代田町塩野
650万円
【妄想プラン予算】
ただいま妄想試算中…
※物件情報、写真などはコチラのサイトから拝借いたしました。
【売れちゃったようです!現在は掲載されていません】
今回は軽井沢のお隣りの町、御代田町。
といってもほとんど軽井沢。西軽井沢なんて呼ばれてる地区です。
僕の住んでいる佐久市のお隣りの町でもあります。
こんな森のアプローチ。素敵ですね。
紅葉がきれい。
これは…庭?なのかな?
敷地面積が977㎡もあるので、庭ですね、きっと。広い。
どんな建物が出てくるのか、ワクワク。
わおー、雰囲気ありますね!
森の景色を見ると軽井沢!でしょ。
そう、ここは西軽井沢、御代田町。
どーん、と存在感ありますね。
ウッドデッキからの森。
森、貸切り的な感じですね。
庭にまだまだ遊びのスペースを十分開拓できそうです。
建物の中心に大きな吹抜け
開放的なリビングスペースです
吹抜けを中心に家全体が繋がっている間取り。
どんな妄想が出来そうか…さっそくいってみましょうか!
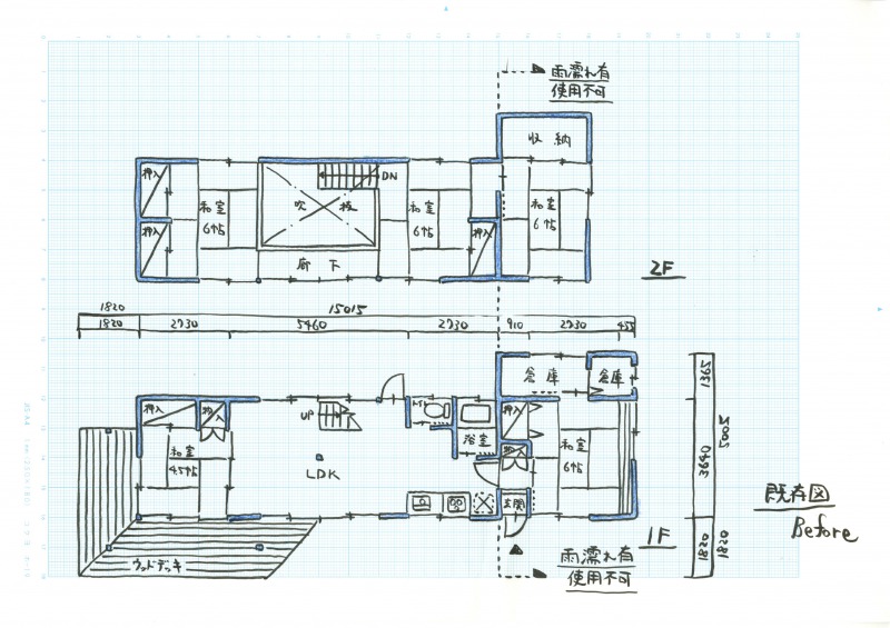
と、既存の図面を見ると…あらら…
点線と矢印で何やら注意書きが…
「雨漏れ有。使用できません」
との表記。
点線から右側の1階も2階も、ということなので、
2階から雨漏れがしていて、1階まで漏れているのでしょうかね?
雨漏れの補修程度で済む状況なのか?
屋根を葺き替えないといけないレベルなのか?
雨漏れによる建物の腐食状況はどうなのか?
構造の躯体に傷みはないか?
ここは状況によって、建物が使えるかどうか、という重要なポイントになってきますので
現地に行って調査が必要になってきます。
一つ注目していただきたいのが、
物件情報のコメントです。
「建物解体予定物件につき、現状のままリフォームをしてお使いいただける方は、建物解体費用を差引きしてお渡しします。
設備の使用状況不明、瑕疵担保責任無の現状渡しとなりますので予めご了承下さい。」
と書いてあります。
この物件の金額は、この建物の解体費用も込みの金額なんですね。
ということは、この建物を壊さないで使うからこのままにしておいて下さい!とお願いをすると、
解体工事費用分の金額を引いてくれる、ということですね。
考え方にもよるかと思いますが、この解体費用分で雨漏れの補修工事をすることができれば、
この建物を壊さずに丸々使える、ということにもなりますね。
写真で見る限り、雰囲気も良さそうですし、なによりも庭が広い。
仮に建物を解体して、この土地に改めて同じような建物を建てようとすると、
恐らく数千万円の費用は掛かるでしょう。
もしまだ建物が使える状況なのであれば、
費用を掛けてでも蘇らせてあげられると良いですよね。
現状、雨漏れがあり、使えない部分がある、
ということを大前提において、
それでは妄想プラン、いってみましょう!
Before
Afterです!
建物の中心の大きな吹抜けを活かして、
家族や友人が集うLDKを配置してみました。
アイランドキッチンにダイニングテーブルを繋げて。
友達をいっぱい呼んで、ホームパーティーをやりたくなりますね。
L字型の大きな開口部分(窓)の向こうに
大きなウッドデッキ。
畳スペースにコタツを置いて、雪見酒なんてサイコーでしょうね。
襖を閉じれば、客間としても使えます。
北側に勝手口があるので、出た場所に薪小屋を作って、
薪を運び込みやすいように。
寒い夜に薪を取りに外に出ないで済むように、
階段下に薪を大量にストックしておきましょう。
既存では洗面脱衣室が無いので、
玄関の位置を変えてスペースを確保。
吹抜けから薪ストーブの暖かい空気が2階に上がっていくので、
寝室や子供部屋も完全に壁で仕切ってしまうのではなく、
部分的に窓のように開けておいたり、
壁の上の部分は開けておいたりしても良いですね。
問題の雨漏れがしている部分は、
傷みや汚れなどがあるようであれば無理をして
全てをキレイにして居室として使うのではなく
足場板などで床を仕上げ、あえて荒っぽい雰囲気にして
外物置や趣味部屋。
工房スペース、仕事場の事務所など、
遊びや仕事の場所として活用してあげても良いかもです。
実はこのスペースは大変、大変貴重。
家の中に大きな作業スペースを確保するのはなかなか難しいですし、
かといって庭に新たに倉庫のような建物を建てようとすると
結構ビックリするような費用が掛かってしまいます。
ここは、雨漏れという悪条件を逆手にとって、
贅沢なスペースを確保しちゃう!というのもありですね。
今回は住宅兼工房・仕事場のような妄想プランでしたが、
レストランとして使ってあげても面白いかな、と思いました。
い~い香りに誘われて童話の中のような森の小道を入っていくと、
そこには窓から柔らかい明かりがもれる、かわいい建物が…
薪ストーブの煙突からの煙のにおい。
ウッドデッキの向こうにはテーブルを囲んで
楽しそうに食事と会話を楽しむ家族の姿が…
なんて、レストラン。
ステキじゃないですか?
※一緒に現地に伺い物件を見させていただくことも可能です。
物件見学の申込み・日程調整などは直接、不動産業者様とお願いします。
お申込みは初回無料の「おためしコンサルプラン」をご利用いただければと思います。

















