【空き家物件情報】
長野県北佐久郡軽井沢町発地
600万円
【妄想プラン予算】
ただいま妄想試算中…
※物件情報、写真などはコチラのサイトから拝借いたしました。
【売れちゃったようです!現在は掲載されていません】
ここはホントに同じ長野県内か?
と思うほど街中を走っている車の車種とナンバーが違う、大人気の軽井沢。
軽トラで高級車にぶつけでもしたら、あえなく人生が終わる…とちょっと運転も緊張モードに変わります。
行楽シーズンには(最近はシーズンによらず)、観光客で賑やか。
天気が良いと木漏れ日の気持ちいい森の道を
自転車で観光やショッピングを楽しむ外国人でごった返しています。
東京駅から新幹線で1時間13分というアクセスの良さも人気の理由。
軽井沢から都心に通勤している方も多いです。
毎日会社に行かなくても週に数日だけ通勤する方、
ネットや電話会議で仕事ができる方、
都心と地方の二拠点生活の方、
単身赴任で週末など休日だけ軽井沢の自宅に帰宅する方、
そんな方たちには特にメリットのある場所のようです。
確かに都心で高い家賃を払って満員電車で1時間で通勤すること、と
軽井沢の自然の中で暮らして新幹線で座って1時間で通勤すること、と
選択肢は一つでは無くなってきそうですよね?
軽井沢町は僕の住む佐久市から車で30分程度の近い場所なのですが
(僕の家は佐久市でも端の方なので1時間掛かりますが)
軽井沢町に一歩足を踏み入れると雰囲気は(気温や環境も)ガラッと変わります。
(…実は軽井沢駅から新幹線で隣の駅+10分の佐久市も住むには穴場だと思ってるんですが)
バブル期以上の新築ラッシュ!?とのウワサも頷けるように、
軽井沢では、あちこちの森の中で建築工事がバシバシ行われています。
当然、長野県内の他の地域とは人気度が違うので物件の価格もUPしてきます。
なかなか他の地域と比べて条件の良いお得な物件を探すのは難しくなってくるかと思います。
ただ、空き家が多いことも確か。
別荘として使われていた、ちょっと古くて小さい家なんかが、
森の中にちょこんとオシャレに佇んでいたりします。
まだまだ探せば良い建物がありそうですね!
憧れの軽井沢に住みたい!
週末だけでも森の中で暮らしたい!
そんな夢に一歩近づくために、軽井沢の妄想プラン、やってみましょう!
今回はコチラの物件
軽井沢町発地、いわゆる南軽井沢エリアの森の中の別荘地内です。
ウッドデッキテラスからの浮遊感のある森と山の景色
文句なし、ですね
キッチンもコンパクトですが、キレイですね
トイレも新しい。水廻りがそのまま使えるのは大きいですね。
畳も壁も天井もキレイ
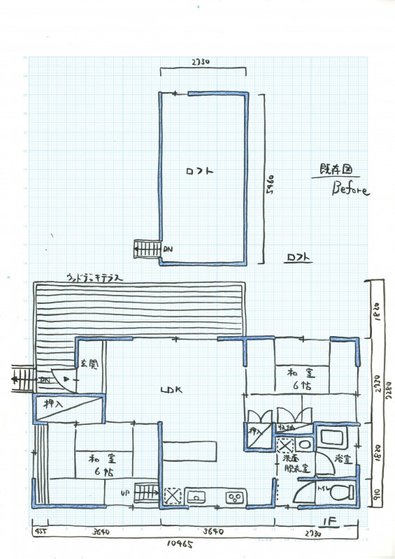
ロフトが広い!わくわくしてきますね。
それでは、妄想プランいってみましょう
Before
Afterです!
なんといってもこの物件のメリットは大きなウッドデッキテラスとその眺望です。
ロフトが広いので収納スペースや子供室も確保できそうです。
別荘地内なので車は必須。(そうでなくても長野県内は、ほぼ車必須ですが)
山道なので雪が降るとちょっと運転の慣れは必要です。
よし!軽井沢で600万、眺望も最高で気に入った!購入!!…と思った方、
ちょっとお待ち下さい。
注意点があります。
物件情報の備考のところをご覧下さい。
【主要採光面:北東向き】
と書いてありませんか?
そういえば…あらためて図面を見てみると普通と違って上側の方に大きな窓が多くないですか?
一般的には大きな窓面が図面の下の方に描かれることが多いのですが、
この図面は上になっています。
そう、一般的に図面は下を南にして描くことが多いので(もちろん違うこともあります)
この図面は建物が建っている方角に近いように合わせて描いてあるのですね。
ということは…
そうです、この建物は北側方向に向かって建っているということになります。
何が言いたいかというと日当たりの問題です。
ご存知の通り、太陽は東から昇り、南を経由して、西に沈みます。
ということは、この図面でいくと、
右側の方から太陽が昇って、下の方を通って、左の方に沈んでいくということです。
部屋の中にどんな風に日差しが入ってくるか想像してみて下さい。
朝、日が昇ると、右側の客間、浴室、トイレのあたりが一番日当たりの良い場所になり、
お昼頃には下側の台所のあたりが、
そして、夕方は左側の子供室に日差しが差し込み、太陽は沈んでいってしまいます…
あれ?居間・食堂は??
一番人が集まり、過ごす時間が長い居間(リビング)を
南側の一番日当たりの良い場所に配置するのが一般的で基本です。
こちらの建物は元々、別荘としての利用がメインだったのでしょうか、
恐らく北側の抜群の眺望を最優先に考えて間取りを決めた建物だと思います。
前回のプランも同じような事例でしたね。
http://www.engawashoten.com/?p=9275
建物の向き、重要な要素です。
たまに利用する別荘であれば良いかもしれませんが、毎日の暮らしとなるとまた話しは別。
この点の良し悪しについては現地に行って、日当たりを確認した上でよくご検討されることをオススメします。
※一緒に現地に伺い物件を見させていただくことも可能です。
物件見学の申込み・日程調整などは直接、不動産業者様とお願いします。
お申込みは初回無料の「おためしコンサルプラン」をご利用いただければと思います。















