【空き家物件情報】
長野県上田市八木沢
420万円
【妄想プラン予算】
430~850万円
【合計予算】
850~1270万円
※手数料等、諸費用は別途になります
※物件情報、写真などは長野県の空き家バンクのコチラから拝借いたしました。
【売れちゃったようです!現在は掲載されていません】
シンプルに夫婦二人で暮らす平屋の家。
空き家活用リノベーション妄想プラン、その5。
今回は上田市八木沢の420万円の物件。
16坪のコンパクトな平屋。
夫婦二人でシンプルに暮らす家。
別所温泉へとなだらかに登っていく緩やかな斜面の八木沢地区。上田市街地からも車で20分程度。
街並みを見下ろす夜景がキレイ。
下水道への接続も含め、キッチン、トイレ、洗面、浴室など
水廻りを全体的に手を入れることになるとリノベーション費用は嵩んできそうです。
ということで
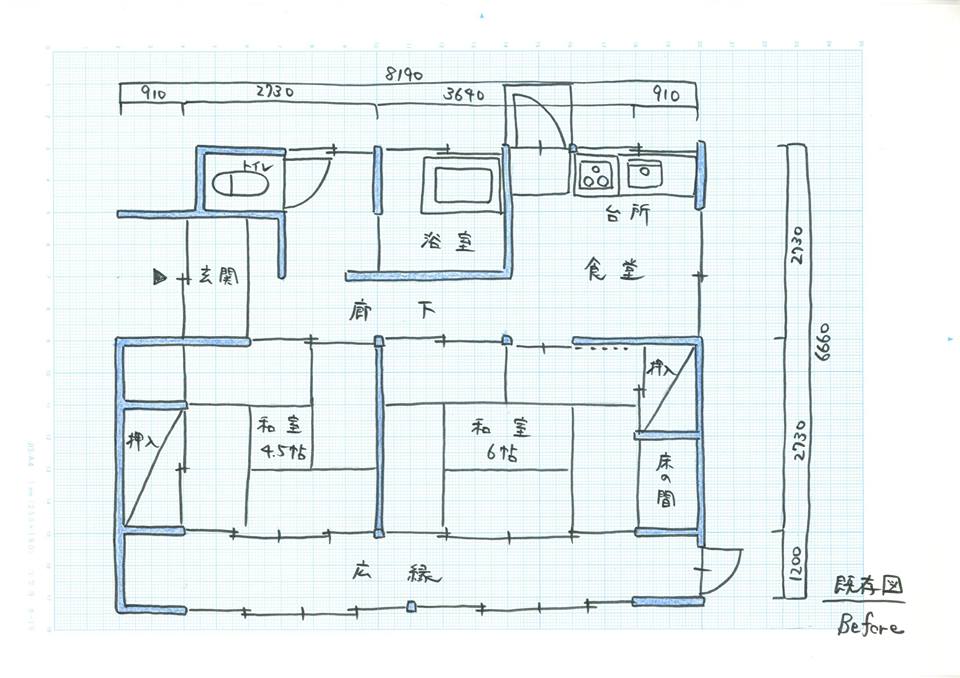
Before
After(妄想)
収納スペースが少なめなので移住をきっかけに
思いきった断舎離にチャレンジするのも良いかもですね。
家全体が繋がったワンルームのような使い方になるため
薪ストーブ一台で家全体を暖めるイメージ。
何気に外から靴を履いたまま
薪を家の中に運び入れられるスペースがポイント。
薪の補充って、何度も靴を履いたり脱いだり、
薪を抱えたままドアを開けるとか…実は重労働なんです。
冬は薪ストーブの火を眺めながらワイン。
夏は庭でバーベキューとビール。
毎日の暮らしのひとつひとつを楽しむ
オトナなお二人にオススメの物件です。
できるだけ壁も天井も手を加えないようにしたので、
断熱材も既存のものをそのまま使うことになりますので、
どの程度の性能になるかがちょっと気になるところ。
新しい家に比べると、気密性も断熱性も確実に劣るので、
寒さ暑さについては覚悟が必要かと思います。
隙間風も覚悟して下さい。
さあ、それでは、気になるリノベーション費用です。
【妄想予算】
あくまで想定であくまで妄想の域を越えてはおりませんので、
具体的な調査・計画等により実際とは大きく異なる場合もありますのでご了承下さいませ。
————————————————————–
PLAN①フルリノベーションプラン 750〜850万円
————————————————————–
[想定した主な仕様]
・浴室・玄関は既存のまま
・屋根・外壁・サッシ等も既存のまま ※構造躯体に補修が必要な場合は別途追加
・既存畳、建具、一部間仕切り壁 解体・撤去処分
・天井 既存利用、一部補修。 ※天井作り替えが必要な場合は別途追加
・床 既存下地を補強の上、再利用。 ※下地作り替えが必要な場合は別途追加
・床 新規根太間に断熱材スタイロフォーム充填、信州カラマツ無垢フローリング張り(節あり)
・内壁 左官タナクリーム仕上げ(左官工事は施主工事)http://store.tanacream.com/
・天井 水性塗料(ペンキ)仕上げ(塗装工事は施主工事)
【床・壁のイメージ】http://www.engawashoten.com/?p=6545
・製作木製建具 シナフラッシュ戸 【イメージ】https://goo.gl/U1ieVG
・造り付け家具・デスク 杉の無垢板材(巾剥材)にて造作(大工製作)http://sozaikoubou.com/goods/mokuzai/kunnennkannsoumokuzai.html
【家具イメージ】http://www.engawashoten.com/?p=6455
・給排水設備工事は下水接続、キッチン・洗面台・トイレ新設 ※調査結果により大きな誤差が出る可能性もあります。
・電気工事、薪ストーブ工事、ウッドデッキ工事含む
【ウッドデッキイメージ】http://www.engawashoten.com/?p=6488
・家具(ソファ、ベット、テーブル、椅子など造り付け家具以外のもの)・家電・カーテンなど 別途
・外構工事、エアコン工事、他暖房工事 別途
・ガス工事は5万円程度の予算取り含む。修繕等必要な場合は別途。
————————————————————–
PLAN②ウッドデッキと家具とキッチンはゆくゆくプラン 560〜660万円
————————————————————–
PLAN①よりウッドデッキ工事・家具工事(造り付け家具・デスク造作)・キッチン新設工事を別途
————————————————————–
PLAN③間取り実現プラン 430〜530万円
————————————————————–
PLAN②より
・薪ストーブ工事を別途
とこんな感じになりました。いかがでしょうか?
こちらの物件の一番のデメリットは水廻り、給排水設備工事に工事費が嵩んでしまうこと。
下水道に接続が済んでおらず、トイレも汲取り式から交換。
キッチン、洗面台も交換・新設していることです。
下水道接続については、こちらの妄想PLAN6の記事に書いていますので参考にしてみて下さい。
http://www.engawashoten.com/?p=8981
下水道接続工事は役所調査や業者さんの現地調査が必要になってくるため、予算は予想で算出しています。
調査結果によっては金額が大きく異なる場合もあります。
妄想プランは全体の間取りを変更していますが、
ひとまず使えそうな場所はそのまま使う、一部屋だけ床を張り替えて、壁塗りをする。
水廻りも今のまま、あるものを使う。もしくはちょっとリメイクする。
そんなかたちで必要最低限の工事だけをする、というだけでも気分は大きく変わるものです。
物件は気に入っているんですが、リノベーションに費用があまり掛けられなくて…
予算内でできることをやりたいんですが…というご相談、Welcomeです。
率直なご予算をお知らせ下さい。
その範囲内でできることをご提案させていただきます。
ご連絡お待ちしております!
※一緒に現地に伺い物件を見させていただくことも可能です。
物件見学の申込み・日程調整などは直接、不動産業者様とお願いします。
お申込みは初回無料の「おためしコンサルプラン」をご利用いただければと思います。
https://peraichi.com/landing_pages/view/engawaplan
●空き家活用妄想プラン【空き家サン】へGO!










