【空き家物件情報】
群馬県吾妻郡嬬恋村大前
480万円
【妄想プラン予算】
ただいま妄想試算中…
※物件情報、写真などはコチラのサイトから拝借いたしました。
【売れちゃったようです!現在は掲載されていません】
前回に引き続き群馬県は嬬恋村。
どこまでを北軽井沢と言って良いかは分かりませんが、
軽井沢から浅間山を挟んで反対側の場所になります。
地図を見る限り、ここまでくると万座温泉、草津温泉の麓と言った方が良いかもですね。
万座温泉
http://www.manzaonsen.gr.jp/onsen/
草津温泉
https://www.kusatsu-onsen.ne.jp/
不覚なことに万座温泉はまだドライブで行っただけで、お湯に浸かったことはないのです…行かねば
草津温泉は行きました、好きです!
お湯も街並みも、かなり好きです。
僕の住んでいる佐久市からも日帰りで行ける距離なので、
また行きたいな~。
熱~いお湯の外湯がサイコーですよね。
http://www.spa-yuyu.net/spa/kyoudoyokujyou/gunnma-kyoudou/kusatu.html
ボウズたちが熱くて入れなくてアタフタしてましたが、
確か雪のある季節に行ったのですが、
芯からあたたまりました。
僕が入ったのは確かこの白旗の湯
http://www.hikyou.jp/detail.php?shid=30495
お湯はモチロン、鄙びた雰囲気の建物も最高。
格子状のガラス面からの太陽の光が、あまりにも神秘的で…
ほわ~ってなります、ほわ~っって。
お湯から出てポカポカした後に、
大衆的な焼き肉屋を見つけてお昼を食べました。
パンチのある外観に惹きつけられて、間違いなくウマいだろうと思って入ったお店
…なんてお店だったっけな~、確か…
あ、これこれ!
焼肉吾妻!
http://www.localplace.jp/t100137286/
いいでしょ?絶対ウマそうでしょ?
入ってみると中はお客さんがいっぱい!
活気もすごくて、いい匂い…
当然、バリウマ。
うまくない、はずがない。
車で日帰りだったので、ビール呑めず…涙をのみました。
次回は絶対、泊まりで行って、ここで呑んだくれます!
…で、なんの話しでしたっけ?
あ、そうそう、妄想プランでした。
今回は、そんな魅力的な温泉街、万座温泉、草津温泉の麓の物件。
森の中に佇むこちらの建物。
なんといってもこの物件のメリット、
天井が高い森を望む広ーいLDK。
大きな立派な梁が見える、吹抜け。
バルコニーからの貸切り的な森。
暖炉風の薪ストーブもあります。
キッチンもちょっと古いかもしれませんがキレイな様子。
1階には広い和室。畳もキレイですね。
広い開放的なお風呂。
洗面所も広い。
トイレもキレイですね。
今回の物件、部屋数は少ないのですが、
その分面積を贅沢に使った広いリビングと広い和室が特徴的。
住宅として使うには持て余してしまうぐらい広いし、
かといって、せっかくの開放的なリビングを
細かく仕切ってしまうのもなんだかもったいないし…
なんかいい使い方がないかなー…
と悩んだ結果、こんなプランを考えてみました
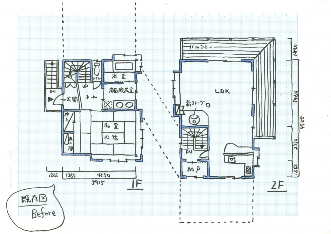
Before
Afterです。
そう、開放的なリビングを事務所として使って、
森林浴をしながらお仕事!
森の中のオフィスにしちゃえ!と考えてみたプランです。
リビングに机を並べて事務スペースに。
キッチンもあるのでコーヒーを入れたり、
場合によってはスタッフで交代でお昼を作って、
スタッフみんなで食事をしても良いですね。
薪ストーブの前のソファベンチ
バルコニーで休憩
休憩ばかりになってしまうかもしれませんが…
火や森を眺めてアイディアを活性化させるのも良いかもしれませんね。
1階の和室は会議室に。
プロジェクターとスクリーンを設置して、
革新的な企画を練り出しましょう。
お風呂もあるので、宿直スタッフ?も宿泊可能。
会議室に布団を並べれば合宿所に早変わり。
お仕事は夕方早めに切り上げて温泉街にお湯に浸かりに。
帰ってきたら薪ストーブのあるオフィスで大宴会です。
このオフィス、仕事しなくなるかな…
クリエイティブという名の仕事と遊びの境目のない、
革新的な会社にオススメな物件でございます。
※一緒に現地に伺い物件を見させていただくことも可能です。
物件見学の申込み・日程調整などは直接、不動産業者様とお願いします。
お申込みは初回無料の「おためしコンサルプラン」をご利用いただければと思います。
















