【空き家物件情報】
長野県上田市真田町
480万円
【妄想プラン予算】
480~850万円
【合計予算】
960~1330万円
※手数料等、諸費用は別途になります
※物件情報、写真などはコチラから拝借いたしました。
【売れちゃったようです!現在は掲載されていません】
長野県上田市は真田町。
スキーやスポーツの聖地、菅平高原の麓の町。
上田市街地を望む景色が見事な日当たりの良い斜面の町。
夜景もキレイ。
山に包み込まれるように景色に溶け込んだ
赤い瓦の屋根がかわいらしい平屋の建物。
写真を見る限りでは車が2台分は入るであろうガレージがあります。
雪が積もった寒ーい朝。
出勤の際は、まずは車の上に積もった雪を降ろし、
ガチガチに凍ったガラスが溶けるのを待つことになります。
急いでいる朝にも拘わらず出発するまでに15分くらい待つ必要があります。
この時間を計算せずにギリギリの時間に出発をしようとすると…
なんてことだ~!出勤時間に間に合わない~!
ということになります。
ガレージがあると、この心配がなくなるのは大きなメリットですよね。
しかもこちらのガレージはシャッターが付いているのでより安心ですね。
それでは、妄想プランいってみましょう!
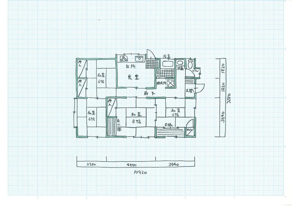
これが、
こんな感じになりました。
水廻りの位置は変えずに、なるべく壁も壊さないように考えてみました。
客間は畳のままにして、お友達や両親が遊びに来た時に泊まってもらえると、
夜中まで気兼ねなく呑んだくれることができますね。
ウォークインクローゼットと書斎のスペースも確保。
薪ストーブのスペースは一段下げてベンチを設けてくつろぎピットスペースに。
ダイニングキッチンとリビングが分かれているので、
食事スペースとくつろぎスペースが分けられます。
風がよく抜けるLDKになりそうです。
できるだけ壁も天井も手を加えないようにしたので、
断熱材も既存のものをそのまま使うことになりますので、
どの程度の性能になるかがちょっと気になるところ。
新しい家に比べると、気密性も断熱性も確実に劣るので、
寒さ暑さについては覚悟が必要かと思います。
隙間風も覚悟して下さい。
LDKは薪ストーブがあれば十分暖かくなります。
それ以外の部屋は灯油ファンヒーターなどの補助暖房が必要になるかと思います。
さあ、それでは、気になるリノベーション費用です。
【妄想予算】
あくまで想定であくまで妄想の域を越えてはおりませんので、
具体的な調査・計画等により実際とは大きく異なる場合もありますのでご了承下さいませ。
————————————————————–
PLAN①フルリノベーションプラン 750〜850万円
————————————————————–
[想定した主な仕様]
・台所・洗面台・浴室・玄関・客間床は既存のまま
・屋根・外壁・サッシ等も既存のまま ※構造躯体に補修が必要な場合は別途追加
(一部外壁解体のうえ補修・新規アルミサッシペアガラス設置:書斎・洗面)
・既存畳、建具、一部間仕切り壁 解体・撤去処分
・天井 既存利用、一部補修。 ※天井作り替えが必要な場合は別途追加
・床 既存下地を補強の上、再利用。 ※下地作り替えが必要な場合は別途追加
・床 新規根太間に断熱材スタイロフォーム充填、信州カラマツ無垢フローリング張り(節あり)
・内壁 左官タナクリーム仕上げ(左官工事は施主工事)http://store.tanacream.com/
・天井 水性塗料(ペンキ)仕上げ(塗装工事は施主工事)
【床・壁のイメージ】http://www.engawashoten.com/?p=6545
・製作木製建具 シナフラッシュ戸 【イメージ】https://goo.gl/U1ieVG
・造り付け家具・デスク 杉の無垢板材(巾剥材)にて造作(大工製作)http://sozaikoubou.com/goods/mokuzai/kunnennkannsoumokuzai.html
【家具イメージ】http://www.engawashoten.com/?p=6455
・給排水設備工事はトイレ交換、下水道接続工事 ※調査結果により大きな誤差が出る可能性もあります。
・電気工事、薪ストーブ工事、ウッドデッキ工事含む
【ウッドデッキイメージ】http://www.engawashoten.com/?p=6488
・家具(ソファ、ベット、テーブル、椅子など造り付け家具以外のもの)・家電・カーテンなど 別途
・外構工事、エアコン工事、他暖房工事 別途
・ガス工事は5万円程度の予算取り含む。修繕等必要な場合は別途。
————————————————————–
PLAN②ウッドデッキ・家具はゆくゆくプラン 650〜750万円
————————————————————–
PLAN①よりウッドデッキ工事・家具工事(造り付け家具・デスク造作)を別途
————————————————————–
PLAN③間取り実現プラン 480〜580万円
————————————————————–
PLAN②より
・薪ストーブ工事を別途
・書斎・洗面のサッシ新設を別途(外壁は全て既存のまま)
とこんな感じになりました。いかがでしょうか?
こちらの物件の一番のデメリットは下水道に接続が済んでおらず、トイレも汲取り式のこと。
こちらの給排水設備工事に工事費が嵩んでしまうことです。
下水道接続については、こちらの妄想PLAN6の記事に書いていますので参考にしてみて下さい。
http://www.engawashoten.com/?p=8981
下水道接続工事は役所調査や業者さんの現地調査が必要になってくるため、予算は予想で算出しています。
調査結果によっては金額が大きく異なる場合もあります。
妄想プランは全体の間取りを変更していますが、
ひとまず使えそうな場所はそのまま使う、一部屋だけ床を張り替えて、壁塗りをする。
水廻りも今のまま、あるものを使う。もしくはちょっとリメイクする。
そんなかたちで必要最低限の工事だけをする、というだけでも気分は大きく変わるものです。
物件は気に入っているんですが、リノベーションに費用があまり掛けられなくて…
予算内でできることをやりたいんですが…というご相談、Welcomeです。
率直なご予算をお知らせ下さい。
その範囲内でできることをご提案させていただきます。
ご連絡お待ちしております!
※一緒に現地に伺い物件を見させていただくことも可能です。
物件見学の申込み・日程調整などは直接、不動産業者様とお願いします。
お申込みは初回無料の「おためしコンサルプラン」をご利用いただければと思います。
https://peraichi.com/landing_pages/view/engawaplan
●空き家活用妄想プラン【空き家サン】へGO!











