
【概要】
住所:長野県長野市
工事内容:住宅(子世帯)のリノベーション
工事箇所:キッチン、リビング、階段、玄関、廊下、物置、寝室、薪ストーブなど
計画期間:2018年4月〜7月
工事・DIY期間:2018年8月〜10月
DIY参加者・家族構成:6人家族(お父さん、お母さん、中学生のお兄ちゃん、小学生の娘さん、幼児の息子さん、おばあちゃん)
チャレンジしたDIYの内容:
解体作業、窓枠作り、古建具の取付け、壁・天井のペンキ塗り、壁のしっくい塗り、キッチン・薪ストーブ腰壁・玄関などのタイル張り、壁・キッチンなどの古材張り、黒板ペイントの掲示板作り、古材・タイルなどの材料調達、現場にてトータルコーディネートなどなどなど。
長野市の住宅街。
一歩外に出ると、車通りも多く、とても利便性の良い立地。
でもここは、まるで森の中にいるような、
気持ちのいい雑木林に囲まれた僕好みのお家。

心地いい雑木林の小道を抜けると、
奥さまとお友達がDIYで張ったタイルが素敵な玄関に辿り着き、
黒板ペイントでDIYした掲示板の可愛いオバケが、
僕たちを迎え入れてくれます。

工事とDIYが完了し、荷物も入り、
住まい手さんの素敵なデコレーションができたところで、
完成のお祝いパーティーにお招きいただきました。

待ちに待った、この時間。
DIYの本質=「自己満足」を堪能する、
至福の自分へのご褒美時間です笑。

あたたかみのある素敵な雰囲気。
まだ乾杯もしてないのに既にホロ酔い気分です。

乾杯の前にまずは散策。
アイアンのフレームを取付けたアンティークなテーブルや椅子も
住まい手さんのチョイス。
植物などのデコレーションもさすがのセンスです。

ここが本日の僕の寝室です笑。

作家さんのひょうたんのランプ。

寝袋持参で参りましたので、
本日はこの優しい光に包まれた快適な寝床を確保。
心置きなく酔っ払いましょう笑。

さあさあ、お待ちかねの開宴でございます!
おいしそーーーー!!!
当然…おいしーーーーー!!!!!

素敵な宴。
今までのリノベーションのエピソード…で話しが盛り上がっているわけではなく、
実は住まい手さんに占いをしてもらい、
設計のおぎちゃんが本気で人生相談をしている図…でございます笑。

ちなみに、もちろん僕も占ってもらいました。
僕の動物占いは、ゆったりとした悠然の虎!
ちなみに相棒大工の◯ツオ氏は猿でした。

ああ…そういえば、どこからどう見てもサルっぽいなーと思ってました。
工事中もまさしくサルな一場面。

カキ泥棒だー!!!

ね!どこからどう見ても、サルっぽいでしょ?笑。
納得。
くだらない前置きが長くなってしまいました…
失礼しました。
それでは、計画から工事、DIYの様子を
美味しいビールをいただきながら振り返ってみましょう!
まずは一般的な流れにそって、
計画の流れからご説明。
まずは、なにはともあれ、
初回無料の「おためしコンサルプラン」をご利用いただき、
詳しいお話しを伺います。
どんなことをしたいのか?
どんなことにチャレンジしたいのか?
みなさんの夢を語っていただきます。
ひととおり語っていただきましたら、
…僕も夢を語らせていただきます!笑。
…となってしまいますと、
ウザい感じになってしまう場合もありますので、
状況によって…ですのでご安心下さいませ笑。
今後の進め方、費用やスケジュールについて、基本的な考え方など、
概要のお話しをこちらから詳しくさせていただき、
次の具体的なステップに進んでいくかのご判断をしていただきます。
もちろん、ご質問などもこの機会にどんどんしていただけます。
ひとつだけこの場を借りてお伝えさせていただきますと、
お見積りなど、その後の具体的なご相談に関しましては、
有償になることをこの時点でお話しさせていただいております。
詳しくは伺った際にお話しをさせていただきます。
その概要を踏まえた上で、
その後の計画に進めるかどうかのご判断をしていただければと思います。
…なんだか急に堅苦しい感じになってしまったので、
話しを雑木林に囲まれた家の回想に戻しましょう!

さあ、計画スタートです!
まずはみなさまの夢を伺った上で、
どのようなカタチにしていくのか?
を検討していくわけです。
住まい手さんの想い、をカタチにするために、
ヒアリングをしながら具体的に検討していくのですが、
下記は住まい手さんと一緒に、
なんとなくプランを検討していったスケッチなのですが…

どうにもこうにも、うまいこと納まらず…
相棒設計士、TUGU設計室のおぎちゃん(オギワラ大将軍)に
ヘルプを依頼し、丸投げしたラフスケッチです笑。
設計士に計画を依頼するかどうか?
それがまず最初に検討する大きな一歩になるのですが、
自分で考える、設計する、という選択肢ももちろんアリです。
それも含めてヒアリングをさせていただき、
どうするか?をまず始めに検討していきます。
今回のように、住まい手さんと僕だけでは手に負えない笑
となった場合や、
設計士に入ってもらった方が、より良い計画になる!
と思った時は、全体の予算や計画の内容を加味しながら、
設計士に協力業者として依頼をするかどうか?を決めていきます。
設計のおぎちゃんにも来てもらって、
再度、ヒアリング。
僕だけでは聞き出せなかった、グッと生活に踏み込んだ、
質問と共感。
まるで以前からの友人だったかのような、
奥さまのMさんとおぎちゃん。
話しが止まらない、止まらない…
こうなると、僕はうん、うん…いいですねー!
と相槌を打つ、置き物状態になっていれば職務が全うされます笑。
彼女の共感力は、ほんと凄い。
信頼する設計士です。
ヒアリングを元にラフプランを作ります。


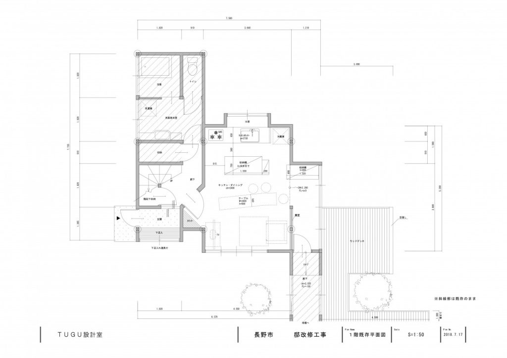
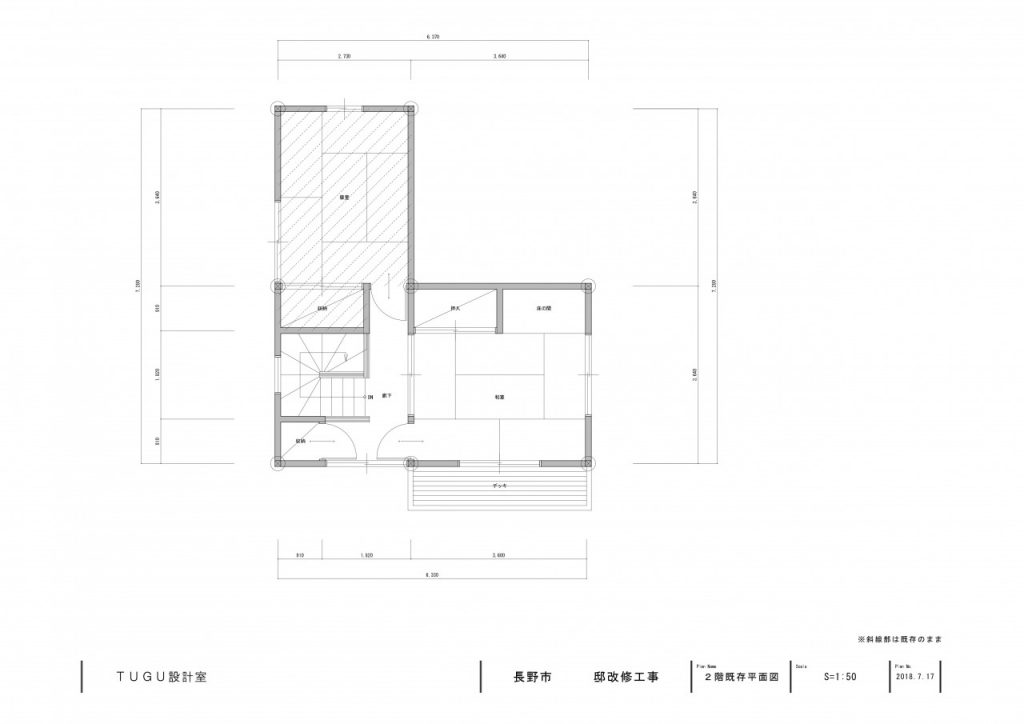
1階、および2階の現状の間取りを図示した既存平面図。


そして、計画図です。
型に囚われない、思い切ったいいプランが出てきました。
固定概念を捨てて、全く違った角度から考えてみる。
それもまた楽しい作業。
それもDIYです。
さあ、たたき台となるプランができましたので、
これを元にプランをDIYしていきましょう!

平面図のラフプランでの打ち合わせから、
今度はCADでより正確な図面に描き起こします。


既存の平面図もCAD図面に。


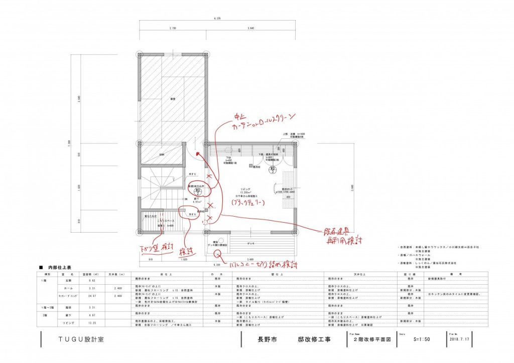
そして、計画の平面図もCAD図面にして、
あーでもない、こーでもない。
あーしたい、こーしたい。
何度も打ち合わせを重ねながら、
イメージに近づけていく作業です。
これもとても大事なDIY。
もう、セルフビルドは始まっています!


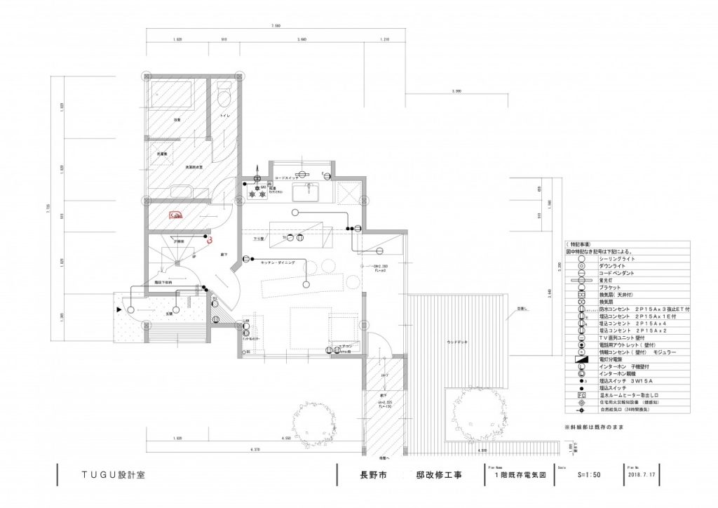
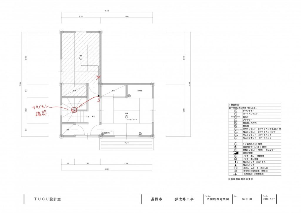
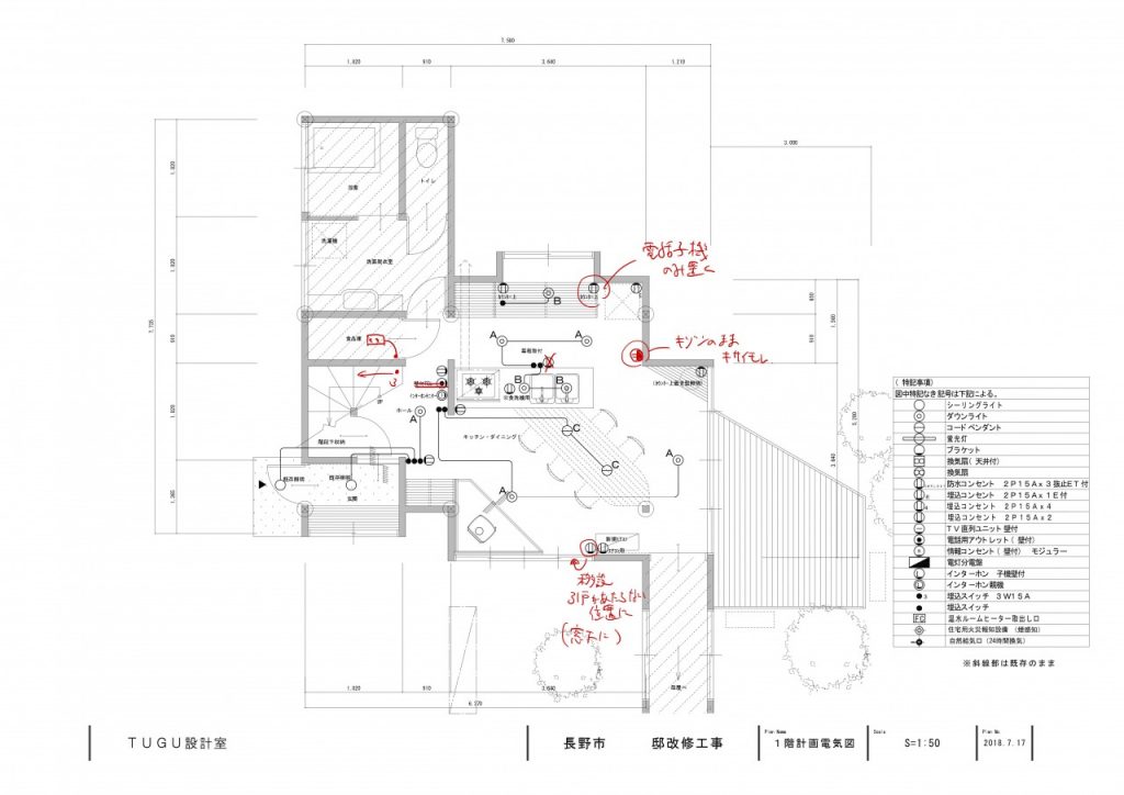
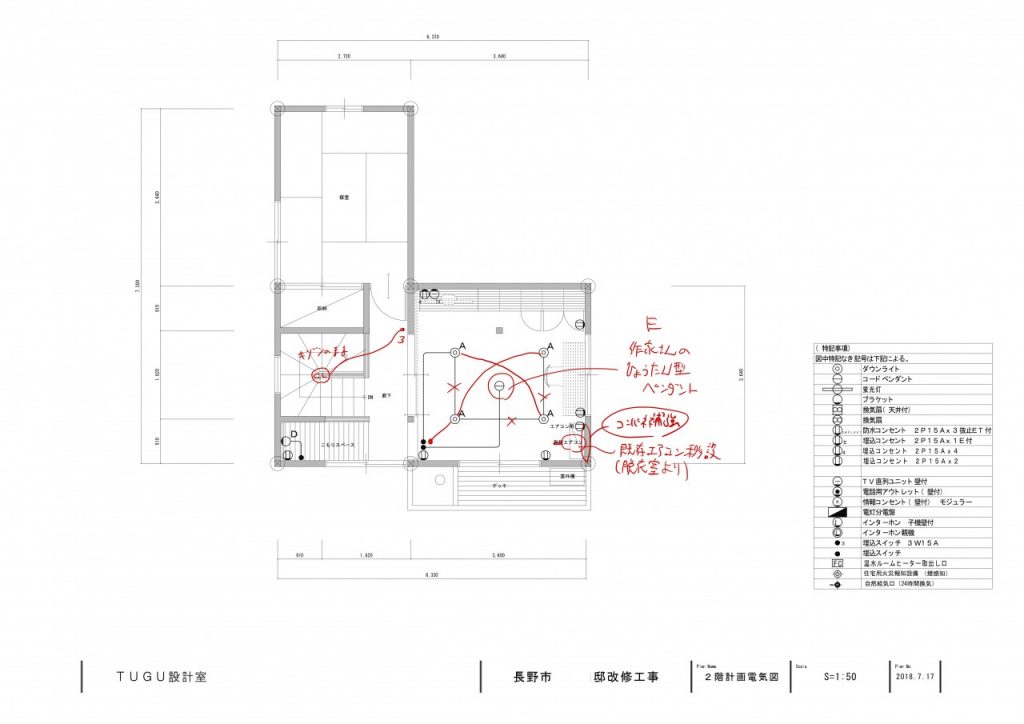
これは電気図。
照明がどこにあるとか、スイッチとかコンセントはどこに、
いくつあるとかを示した図面です。
こちらも現状を示した既存図面と。


それを、リノベーションでどう変えようか?
という電気の計画図面になります。
これも、たたき台を元に、あーでもない、こーでもない。

照明器具はどんなものにしようか?
こんなライトも素敵ですねー!
あーでもない、こーでもない。

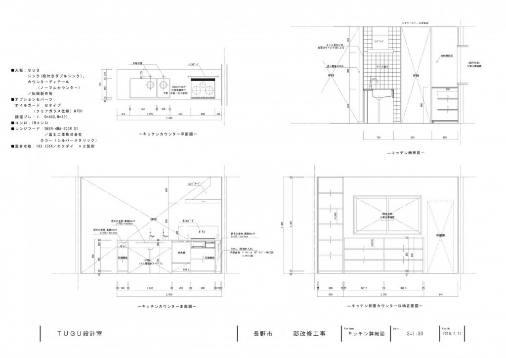
キッチンも既製品じゃなくて、作っちゃいましょうかー!
ここにタイルを張ってー、食洗機は欲しいよねー、
棚は何段あった方がいいかな?
新しく買おうと思ってるゴミ箱はちゃんとここに入るかな?
冷蔵庫は、この機会に新調します!
元々あった食器棚の扉(建具)だけを再利用できないかなー?

このガラスの扉、使えないかなー?
それなら、そのサイズに合わせて棚も作りましょう!


結果的にこんな感じになりました。
住まい手さんのアイディアで、
古材やタイルの切れ端なども駆使して、
なんとも素敵なオリジナルの棚に生まれ変わりました。

建具(扉)も既製品ではなく、建具屋さんに作ってもらいましょう!
ガラスを入れたり、格子を入れたり、
どんな素材で作ろうか?
考えることだらけで頭がパンクしちゃうかもしれませんが笑
作り始めるまでの、考える計画もDIYで存分に楽しみましょう。
そして、とても大事な、この工事が一体いくらでできるのか?
どのくらいの期間が掛かるのか?
という、見積書と工程表を作ります。
自分でできることと、自分ではできないこと。
できないことは無理をしないで、
専門の協力業者さんに依頼をして…
いよいよ、計画をまとめていきます。
…とここからが、ちょっと苦しい作業。
計画も予算も工期も、ぜーんぶオッケー!
理想の家ができそうだ!!!
っと、一発オッケー!…とうまいこといけばいいのですが、
そんな奇跡のようなことは、なかなかありませんでして…苦笑
図面と予算と工程と…全てと睨めっこをしながら、
少しずつ実現に向けて、打ち合わせを重ねながら調整をしていきます。
優先順位を付けながら、いる、いらない、も含めて、
または、違った方法はないか?
と、あーでもない、こーでもない。
これが着工前の最も大切な、でもちょっと苦しいDIYになります笑
さあ、これを乗り越えたら、いよいよ工事スタート!
着工です!
…大丈夫ですか?笑
息切れしてないですか?笑
まだ計画が終わったばかりですよ!笑
さあ、いよいよ!
手を動かしていきましょう!
今回のDIYは奥さまがメイン。
朝のお仕事を終えて、子供達を学校や幼稚園に送り出して、
…さあ、いざ!DIY!笑

できないところは、もちろん職人さんに進めていただきながら、
でもできるところはチャレンジしてみましょう!
と今回は解体などの大工工事も部分的にチャレンジしてもらいました。
まずは押入れを壊す作業。

ママ…すごっ!…カッコイイ✨

早速のハプニング!
夜の内に中学生のお兄ちゃんと一緒に壁を壊していたら、
壊す予定じゃなかった階段の下の部分の壁も壊れてしまったそう…
また塞げばいいことだけなのですが、
お兄ちゃんからナイスアイディアが降ってきたそうでして。

壊れた箇所の壁を通じて、
階段下から押入れに入れるようにすれば、
秘密のこもり部屋ができるのでは!?
たしかに…ナイスアイディア!
でも…めっちゃ狭いっすけどね!笑
でも、おもしろい。
それでもいいなら、どうぞ!どうぞ!
そうしてみましょう!
ただし、自分でやってみましょうね!笑

キラキラとした目でガシガシ壊していただけました!笑
早速、図面には描かれていない、計画の段階では出てこなかった、
新たなアイディアがアドリブで実現しました。
実は、DIYはこれが最も大きなメリットの一つ。
その場で、自分たちが良いと思った通りに、
自分たちの納得のいくカタチで作り上げることができる。
これは、自分たちで手を動かしていない限りは、
なかなか実現し得ない、DIYの醍醐味でもあります。
自分たちが良い、と思えば、そうしてしまえば良いのです。

超狭小こもり部屋スペースは進行してまいります笑

どこから探してきたのか?笑
古材の角材を並べて。

階段からのこもりスペースと、
その下の超狭小こもり部屋スペースがカタチになってきました笑
上にも一段、古材で作った棚。

続いて壁にも細工を。
壊す、壊す、叩いて、壊す。
ストレス解消、楽しそう笑。

スマイル〜
って、はいはい。
さあさあ、壊して、壊して。

ここにこの古建具を入れたらいいんじゃない!?
と奥さまのひらめき✨
たしかに…
じゃー…やってみましょうか!

えーっと…そのためには…
こーいったことになりますので、
えーっと、じゃあ、こんな風に下地を作ってみて下さい!
どうぞ!笑

ええ!?
インパクトドライバー握るのも初めてなんですけど…
まあまあ、なんとかなりますから、
…やってみましょう!笑

いいですね、いいですねー!
カタチになってきましたよー!

できたじゃないですかー!いい感じですー!

大工さんの床張りも進んできて、いい感じの階段廻りになってきました。

ついでに古建具を、もう一つ!笑
建具の廻りも古材を張って、アクセントに。

古建具の色合いに合わせて、
廻りの木枠も古材風に塗装をして馴染ませてあげましょう。

古材風で整えていたら、
階段の下の木目調のプリントの板の部分が、
だんだん気になってきてしまったようでして、
ここにも古材の薄板を張ってしまえ!
となりました。

古いタンスを解体して、その板を取手付きのままペタリ。
…おもしろい。
秘密の扉みたい…この先には…
何も無いので、ぶら下がらないでね笑。

さあ、階段廻りの造作はできたので、
壁の漆喰(しっくい)塗りといきましょう!

娘ちゃんも参戦してくれました。

慣れてきたところで、2階の壁も塗ってっちゃいましょー!
ついでに、予定には無かったけど、寝室も塗っちゃえー!

そうこうしているうちに、キッチンもだんだんとカタチになってきました。

キッチンのタイル張りがスタート!
ここは、タイル大好き設計士のおぎちゃんが黙っているわけがありません。
当然、タイル張り、参戦。

そして、合板の厚板で作ったキッチンに古材を張り付けて。

オリジナルキッチンの完成。

どこからか貰ってきたというタイルをストーブ周りにも張り付け。

いよいよ、リビングも壁と天井塗りです。

ここも塗っちゃえー!
DIYは思いついたが吉日。
やってしまいましょう。

夜な夜な、お兄ちゃんにも手伝ってもらいながら、
作業を進めて下さったようでして…
お見事!

ポイントでピンク色の漆喰。
これが、古材の色とドンピシャの相性。
奥さまのチョイス、すばらしい。

もう一つ、住まい手さんの今回の大仕事が、
古材の調達。
毎日、朝現場に来ると、
昨日は無かったはずの古材が、
いつの間にか増えている…
これは、一体…
昨日、解体作業しているところの前を通り掛かったから、
それ、くださーい!って突撃したら、くれた!
とのこと…お見事、グッジョブでございます。

買うとそれなりの金額になってしまう古材。
独特の質感で、新しい材料には出せない素材感。
合板で作るだけだった棚も、
古材でアレンジすることにより、
独特な存在感に変貌しました。

また、何やら見つけてきたようでして…
この額をどうしたいと…?

この壁の向こうの洗面所が暗いから、
明かりとりに額を使って窓を作りたい…と。

何をするには、下地からですよ…と。

見事な額窓ができたじゃないですか。

なかなかのインスタ映えスポットになりましたよ。

カメラマンのわとさんに、
こんな写真をお願いしちゃいけませんよ。

子ども達も手伝ってくれながら、
なんとかカタチになりました。
「何か手伝えることあるー?」
と声を掛けてくれる、子ども達。
おじちゃん達は、その興味を持ってもらえてる、
その一言だけで癒されてるんですよー
…特にこの相棒大工おじちゃんは!
実際、貴重な貴重な戦力です。
ありがとねー
まだまだ語り尽くせぬエピソードは、
たくさんあるのですが、既にかなり長ーくなってしまったことと、
エピソードに偏りすぎて、
施工事例らしからぬ記事になってしまったことと、
薪ストーブの心地良い暖かさと、
宴の酔いがいい感じでまわって、
いい気分になってしまったこともあり、
この辺で、お開きにしたいと思います。

ありがとうございました!
以上、僕好みの雑木林に囲まれた家、施工事例・DIYの記録でございました!
<
【Before & After】































【DIYの記録・関連記事】
●長野市の住宅街の中の雑木林と花畑→https://engawashoten.com/?p=10419
●パワフルママのセルフリノベ秘密基地作り→https://engawashoten.com/?p=10641
●DIY女子部による古材キッチン作りとタイル貼り→https://engawashoten.com/?p=10729
●長野市の雑木林の家で至福の時間。→https://engawashoten.com/?p=11066
【協力業者】 設計:TUGU設計室 大工:日本建築柾彦 鋼製建具:サニータテヤマ 木製建具:森の扉 電気・給排水設備:千幸 薪ストーブ:DLD 材木:小林木材 建材:山宗建材、カネト セルフビルドパートナー:えんがわ商店 竣工写真:加倉井和人









